Краснодарский край, г. Сочи, ул. Волгоградская, д.30
6 700 000 руб.
Прежняя цена 6700000 руб.
№ 8682
просмотров: 2656 посетителей: 1242
14.07.2021
Продаю
Характеристики
Адрес
Краснодарский край, г. Сочи, ул. Волгоградская, д.30
Тип
1 комнатная квартира
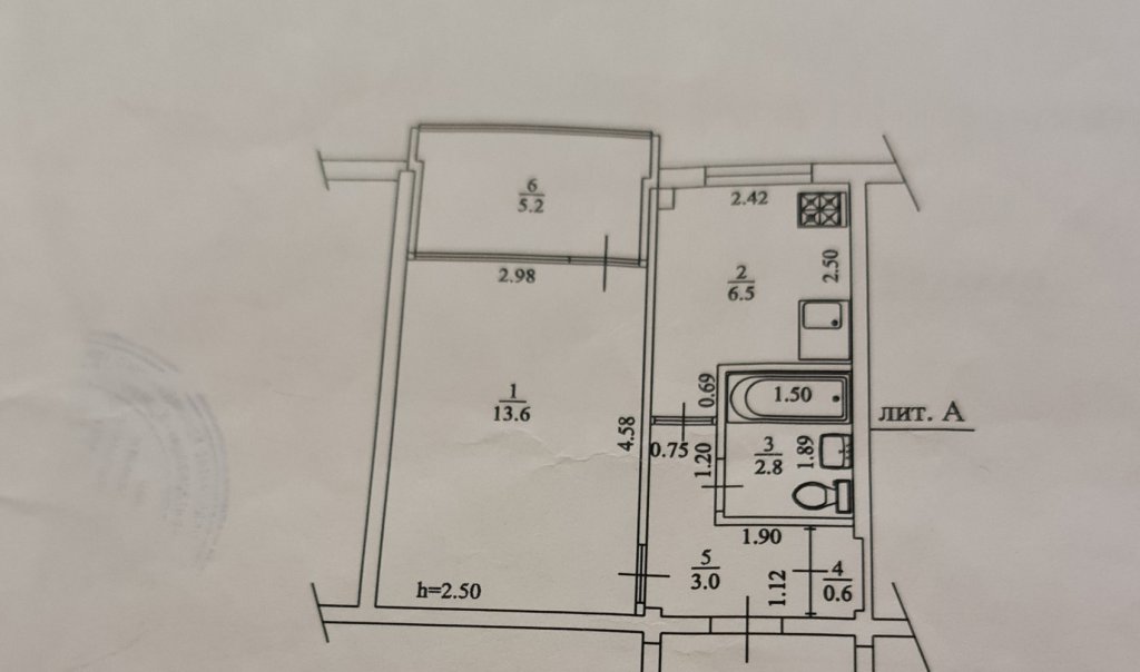
Площадь
31,7 / 18,8 / 6,5 м²
Планировка
Улучшенная
Этажность, материал
3 / 5 / Панель
Комнаты
Изолированные
Санузел
Совмещенный
Кух. плита
Газовая
Гор. вода
Центральное
Вх. дверь
Металл
Остекление
Стеклопакет пластик
Балкон
Лоджия
-остекление
Стеклопакет пластик
-отделка
Обшит вагонкой
Ремонт
Косметический
Подъезд
Домофон
Мусоропровод
Нет
Лифт
Нет
Выс. потолка
3,0-3,5 м.
Торцевая
Нет
Год постройки
1989
Комментарий
Контактная информация
+7 918 109 07 19
+7 904 270 27 70
Карта
Панорама













СРОЧНАЯ ПРОДАЖА Срочно продается г. Сочи, 1 ул/п, 3/5 пан., ул. Волгоградская д. 30, S - 31,7/13,6+5,2/6,5 м2. Свободна от проживания и регистрации. Продается как есть, со всей обстановкой. Вся инфраструктура в шаговой доступности, удобное транспортное сообщение в любую точку города. Желаем Вам удачного просмотра и скорейшего приобретения этой квартиры. Просмотры в удобное для вас время. Звоните, всегда договоримся!!!