Краснодарский край, г. Сочи, ул. Гайдара, д.20
24 500 000 руб.
Прежняя цена
№ 8749
просмотров: 2542 посетителей: 1186
20.03.2022
Продаю
Характеристики
Адрес
Краснодарский край, г. Сочи, ул. Гайдара, д.20
Тип
3 комнатная квартира
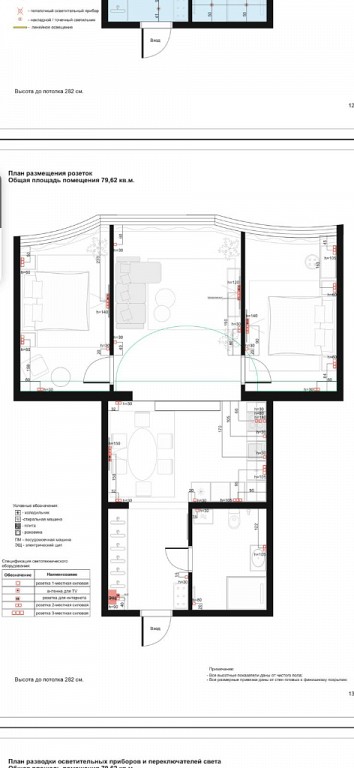
Площадь
74 / 50 / 15 м²
Планировка
Улучшенная
Этажность, материал
18 / 18 / Монолит
Комнаты
Изолированные
Санузел
Совмещенный
Кух. плита
Электрическая
Гор. вода
Центральное
Вх. дверь
Двойная металлическая
Остекление
Стеклопакет пластик
Ремонт
Евроремонт
Подъезд
Домофон
Лифт
Пассажирский+грузовой
Выс. потолка
2,8-3,0 м.
Торцевая
Нет
Год постройки
2019
Комментарий
Контактная информация
+7 900 250 05 70
+7 904 209 79 16
Карта
Панорама













Продам 3 кв., г. Сочи, Дагомыс. ЖК Солнечный Дагомыс . 73,6 м2, 18 этаж. Статус КВАРТИРА. Отличное состояние , евро ремонт , техника и мебель . Один собственник. Рядом магазины, рынок , школа, садик, авт остановка. До моря 25 мин пешком.